| 物件名 | 桂和レジデンス円山公園 | ||
|---|---|---|---|
| 号室名 | 203号室 | ||
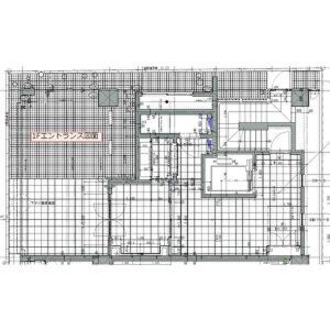
| 間取タイプ | 1LDK | ||
| 間取詳細 | |||
| 専有面積 | 41.1m2 | ||
| 方位 | 南西向き | ||
| 所在階 | 2階部分 | ||
| 賃料 | 108,000円 | ||
| 共益費・管理費 | 7,000円 | ||
| 敷金 | なし | ||
| 保証金 | なし | ||
| 礼金 | 法人契約の場合、賃料1ヶ月分 | ||
| 償却・敷引 | なし | ||
| 状態 |
空室
入居時期:即入 |
||
| 間取タイプ | 1LDK | 間取詳細 | |
|---|---|---|---|
| 専有面積 | 41.1m2 | 所在階/方位 | 2階部分/南西向き |
| 賃料 | 108,000円 | 共益費 ・管理費 |
7,000円 |
| 敷金 | なし | 礼金 | 法人契約の場合、賃料1ヶ月分 |
| 保証金 | なし | 償却・敷引 | なし |
| 状態 |
空室
入居時期:即入 |
||
| 物件種別 | [住居用] マンション |
|---|---|
| 物件名 | 桂和レジデンス円山公園 |
| 所在地 | 北海道札幌市中央区大通西27丁目 |
| 交通 | 地下東西線「円山公園」徒歩1分 |
| 構造 | 鉄筋コンクリート造 地上7階 地下1階 |
| 築年 | [ 新築 ] 2025年07月築 |
| 駐車場 |
なし |
| 物件種別 | [住居用] マンション |
|---|---|
| 物件名 | 桂和レジデンス円山公園 |
| 号室名 | 203号室 |
| 所在地 | 北海道札幌市中央区大通西27丁目 |
| 交通 | 地下東西線「円山公園」徒歩1分 |
| 構造 | 鉄筋コンクリート造 地上7階 地下1階 |
| 築年 | [ 新築 ] 2025年07月築 |
| 駐車場 |
なし |
地下鉄「円山公園」駅1番出口隣 徒歩1分の駅近物件!
| 物件種別 | [住居用] マンション | ||||||||||||||||||||||||||||||||
|---|---|---|---|---|---|---|---|---|---|---|---|---|---|---|---|---|---|---|---|---|---|---|---|---|---|---|---|---|---|---|---|---|---|
| 所在地 | 北海道札幌市中央区大通西27丁目 | ||||||||||||||||||||||||||||||||
| 交通 |
地下東西線「円山公園」徒歩1分 |
||||||||||||||||||||||||||||||||
| 構造 | 鉄筋コンクリート造地上7階地下1階 | ||||||||||||||||||||||||||||||||
| 総戸数 | 16 | ||||||||||||||||||||||||||||||||
| 築年月 | [ 新築 ] 2025年07月 | ||||||||||||||||||||||||||||||||
| 駐車場 |
なし |
||||||||||||||||||||||||||||||||
| 町会費 | 賃料に含む | ||||||||||||||||||||||||||||||||
| 所在階 | 2階部分 | ||||||||||||||||||||||||||||||||
| 方位 | 南西向き  | ||||||||||||||||||||||||||||||||
| 間取 | 1LDK | ||||||||||||||||||||||||||||||||
| 専有面積 | 41.1 m2 | ||||||||||||||||||||||||||||||||
| バルコニー面積 | - - m2 | ||||||||||||||||||||||||||||||||
| 状態 | 空室 | ||||||||||||||||||||||||||||||||
| 賃料 | 108,000円 | ||||||||||||||||||||||||||||||||
| 共益費 ・管理費 |
7,000円 | ||||||||||||||||||||||||||||||||
| 敷金 | なし | ||||||||||||||||||||||||||||||||
| 保証金 | なし | ||||||||||||||||||||||||||||||||
| 礼金 | 法人契約の場合、賃料1ヶ月分 | ||||||||||||||||||||||||||||||||
| 償却・敷引 | なし | ||||||||||||||||||||||||||||||||
| 更新料 | 法人契約の場合、賃料1ヶ月分 |
||||||||||||||||||||||||||||||||
| 他諸経費 |
○ 保証会社
保証会社利用必須 ジェイリース
初回保証料:月額固定費50%(税込)、毎月保証料:900円/月、継続保証料無し ■その他保証会社 【日本賃貸保証】初回保証料:月額賃料合計の50%(税込)、更新保証料:10,000円/年、集送金手数料:300円(税別) ※日本賃貸保証ご利用の場合、敷金発生の可能性がございます。あらかじめご了承ください。
○ 保険
保険要加入 火災保険
○ ランニングコスト
○ 退去時
○ その他
|
||||||||||||||||||||||||||||||||
| 契約期間 | 普通借家 2年間 | ||||||||||||||||||||||||||||||||
| その他 |
法人契約可 |
||||||||||||||||||||||||||||||||
| オススメ |
地下鉄「円山公園」駅1番出口隣 徒歩1分の駅近物件! |
||||||||||||||||||||||||||||||||
| 備考 | |||||||||||||||||||||||||||||||||
| 周辺環境・施設 |
○ [ ショッピングセンター ] マルヤマクラス 230m
○ [ 病院 ] 医療法人社団 円山公園内科 220m
○ [ ドラッグストア ] サッポロドラッグストア北円山店 330m
|
||||||||||||||||||||||||||||||||
| 設備・条件 | ○ 角部屋 ○ 2人入居可能 ○ 子供可 ○ 保証会社利用必須 ○ 給湯器(都市ガス) ○ ガスコンロ(2口) ○ システムキッチン ○ 対面式キッチン ○ カウンターキッチン ○ 風呂(ユニットバス) ○ トイレ(水洗) ○ 洗面台(独立) ○ 浴室乾燥機 ○ シャワートイレ ○ 追い焚き ○ 洗髪洗面化粧台 ○ バス・トイレ別 ○ 洗濯機置場(室内) ○ エアコン(冷暖房) ○ 暖房(都市ガス) ○ ウォークインクローゼット ○ トランクルーム ○ シューズボックス ○ 光ファイバー ○ ケーブルTV ○ インターネット対応(回線工事不要・契約不要) ○ ネット使用料不要 ○ オートロック ○ 宅配BOX ○ 管理人(巡回) ○ 防犯カメラ ○ インターホン(カメラ付き) ○ 24時間利用 ○ 専用ごみ置場 ○ エレベーター(1基) ○ 自転車置場 ○ ロードヒーティング ○ 電気 ○ ガス(都市ガス) ○ 水道(公営) ○ 排水(公共下水) ○ バルコニー/ベランダ ○ 照明 ○ 網戸 ○ フローリング ○ 室内物干 ○ 日当たり良好 | ||||||||||||||||||||||||||||||||
| 情報更新日 | 2025-11-28 13:39:27 | ||||||||||||||||||||||||||||||||
| お問合せ |
お問い合わせの際に「桂和レジデンス円山公園 203号室」とお伝えいただくとスムーズです
株式会社シティビルサービス札幌
札幌市中央区南九条西6丁目1-1 シティビル7-8階 TEL:011-596-0477 / FAX:011-561-7014 web:http://city-bld.net/ Email:info@city-bld.com 北海道知事石狩免許(3)第7838号 取引態様:仲介 |