| 物件名 | リラハイツ表参道 | ||
|---|---|---|---|
| 号室名 | 303号室 | ||
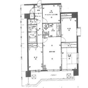
| 間取タイプ | 3LDK+S | ||
| 間取詳細 | |||
| 専有面積 | 76.17m2 | ||
| 方位 | 西向き | ||
| 所在階 | 3階部分 | ||
| 賃料 | 120,000円 | ||
| 共益費・管理費 | 3,000円 | ||
| 敷金 | 1ヶ月 | ||
| 保証金 | |||
| 礼金 | なし | ||
| 償却・敷引 | |||
| 状態 |
空室
入居時期:即入 |
||
| 間取タイプ | 3LDK+S | 間取詳細 | |
|---|---|---|---|
| 専有面積 | 76.17m2 | 所在階/方位 | 3階部分/西向き |
| 賃料 | 120,000円 | 共益費 ・管理費 |
3,000円 |
| 敷金 | 1ヶ月 | 礼金 | なし |
| 保証金 | 償却・敷引 | ||
| 状態 |
空室
入居時期:即入 |
||
| 物件種別 | [住居用] マンション |
|---|---|
| 物件名 | リラハイツ表参道 |
| 所在地 | 北海道札幌市中央区北一条西23丁目 |
| 交通 | 地下東西線「円山公園」徒歩7分 |
| 構造 | 鉄骨鉄筋コンクリート造 地上8階 |
| 築年 | 1986年10月築 |
| 駐車場 |
なし |
| 物件種別 | [住居用] マンション |
|---|---|
| 物件名 | リラハイツ表参道 |
| 号室名 | 303号室 |
| 所在地 | 北海道札幌市中央区北一条西23丁目 |
| 交通 | 地下東西線「円山公園」徒歩7分 |
| 構造 | 鉄骨鉄筋コンクリート造 地上8階 |
| 築年 | 1986年10月築 |
| 駐車場 |
なし |
| 物件種別 | [住居用] マンション | ||||||||||||
|---|---|---|---|---|---|---|---|---|---|---|---|---|---|
| 所在地 | 北海道札幌市中央区北一条西23丁目 | ||||||||||||
| 交通 |
地下東西線「円山公園」徒歩7分 |
||||||||||||
| 構造 | 鉄骨鉄筋コンクリート造地上8階 | ||||||||||||
| 総戸数 | 20 | ||||||||||||
| 築年月 | 1986年10月 | ||||||||||||
| 駐車場 |
なし |
||||||||||||
| 町会費 | |||||||||||||
| 所在階 | 3階部分 | ||||||||||||
| 方位 | 西向き  | ||||||||||||
| 間取 | 3LDK+S | ||||||||||||
| 専有面積 | 76.17 m2 | ||||||||||||
| バルコニー面積 | - - m2 | ||||||||||||
| 状態 | 空室 | ||||||||||||
| 賃料 | 120,000円 | ||||||||||||
| 共益費 ・管理費 |
3,000円 | ||||||||||||
| 敷金 | 1ヶ月 | ||||||||||||
| 保証金 | |||||||||||||
| 礼金 | なし | ||||||||||||
| 償却・敷引 | |||||||||||||
| 更新料 | |||||||||||||
| 他諸経費 |
○ 保証会社
保証会社利用可能 日本セーフティー
初回保証料 プラス1(保証人あり:40%)プラス2(保証人なし:50%) 最低保証料金プラス1(16,000円)プラス2(20,000円) ※1年更新(更新保証料10,000円) 保証会社利用可能(必須ではありません) 日本セーフティの申込書は書類DLより取得下さい。
○ 保険
保険要加入 2年契約 22,000円
○ 初期費用
|
||||||||||||
| 契約期間 | 普通借家 | ||||||||||||
| その他 |
法人契約可 |
||||||||||||
| オススメ | |||||||||||||
| 備考 |
○ 分譲リースです。駐車場はございません。 家賃交渉、フリーレントの相談等ご相談ください。 |
||||||||||||
| 周辺環境・施設 | |||||||||||||
| 設備・条件 | ○ 角部屋 ○ 2人入居可能 ○ 保証会社利用可能 ○ 給湯器(都市ガス) ○ ガスコンロ(3口以上) ○ システムキッチン ○ 風呂(ユニットバス) ○ トイレ(水洗) ○ 浴室乾燥機 ○ 暖房便座 ○ シャワートイレ ○ 洗髪洗面化粧台 ○ バス・トイレ別 ○ 洗濯機置場(室内) ○ エアコン ○ 暖房(灯油) ○ シューズボックス ○ オートロック ○ 宅配BOX ○ インターホン(カメラ付き) ○ エレベーター(1基) ○ 電気 ○ ガス(都市ガス) ○ 水道(公営) ○ 排水(公共下水) ○ バルコニー/ベランダ | ||||||||||||
| 情報更新日 | 2026-04-14 13:16:18 | ||||||||||||
| お問合せ |
お問い合わせの際に「リラハイツ表参道 303号室」とお伝えいただくとスムーズです
北勝都市開発株式会社
札幌市中央区南一条西23丁目1-33 TEL:011-640-3313 / FAX:011-616-8175 web:http://www.hokusho-toshi.com/ Email:t-kaihatsu@hokusho-group.co.jp 北海道知事石狩免許(8)第5300号 取引態様:貸主代理 |