| 物件名 | R-fino N17 | ||
|---|---|---|---|
| 号室名 | 109(F・1LDK)号室 | ||
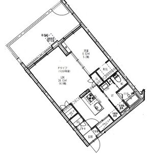
| 間取タイプ | 1LDK | ||
| 間取詳細 | LDK14.6+洋5.2 | ||
| 専有面積 | 47.2m2 | ||
| 方位 | 西北向き | ||
| 所在階 | 1階部分 | ||
| 賃料 | 82,000円 | ||
| 共益費・管理費 | 6,000円 | ||
| 敷金 | なし | ||
| 保証金 | なし | ||
| 礼金 | なし | ||
| 償却・敷引 | |||
| 状態 |
空室
入居時期:即入 |
||
| 間取タイプ | 1LDK | 間取詳細 | LDK14.6+洋5.2 |
|---|---|---|---|
| 専有面積 | 47.2m2 | 所在階/方位 | 1階部分/西北向き |
| 賃料 | 82,000円 | 共益費 ・管理費 |
6,000円 |
| 敷金 | なし | 礼金 | なし |
| 保証金 | なし | 償却・敷引 | |
| 状態 |
空室
入居時期:即入 |
||
| 物件種別 | [住居用] マンション |
|---|---|
| 物件名 | R-fino N17 |
| 所在地 | 北海道札幌市東区北十七条東3丁目 |
| 交通 | 地下東豊線「北13条東」徒歩11分 札幌市南北線「北18条」徒歩12分 |
| 構造 | 鉄筋コンクリート造 地上5階 |
| 築年 | 2023年01月築 |
| 駐車場 |
敷地内駐車場/空きなし/9,900円~13,200円 空き状況は都度ご確認下さい。2LDK専用(1LDK不可) |
| 物件種別 | [住居用] マンション |
|---|---|
| 物件名 | R-fino N17 |
| 号室名 | 109(F・1LDK)号室 |
| 所在地 | 北海道札幌市東区北十七条東3丁目 |
| 交通 | 地下東豊線「北13条東」徒歩11分 札幌市南北線「北18条」徒歩12分 |
| 構造 | 鉄筋コンクリート造 地上5階 |
| 築年 | 2023年01月築 |
| 駐車場 |
敷地内駐車場/空きなし/9,900円~13,200円 空き状況は都度ご確認下さい。2LDK専用(1LDK不可) |
| 物件種別 | [住居用] マンション | ||||||||||||||||||||||||
|---|---|---|---|---|---|---|---|---|---|---|---|---|---|---|---|---|---|---|---|---|---|---|---|---|---|
| 所在地 | 北海道札幌市東区北十七条東3丁目 | ||||||||||||||||||||||||
| 交通 |
地下東豊線「北13条東」徒歩11分 札幌市南北線「北18条」徒歩12分 |
||||||||||||||||||||||||
| 構造 | 鉄筋コンクリート造地上5階 | ||||||||||||||||||||||||
| 総戸数 | 40 | ||||||||||||||||||||||||
| 築年月 | 2023年01月 | ||||||||||||||||||||||||
| 駐車場 |
敷地内駐車場/空きなし/9,900円~13,200円 空き状況は都度ご確認下さい。2LDK専用(1LDK不可) |
||||||||||||||||||||||||
| 町会費 | 250円(月額) | ||||||||||||||||||||||||
| 所在階 | 1階部分 | ||||||||||||||||||||||||
| 方位 | 西北向き  | ||||||||||||||||||||||||
| 間取 |
1LDK
LDK14.6+洋5.2 |
||||||||||||||||||||||||
| 専有面積 | 47.2 m2 | ||||||||||||||||||||||||
| バルコニー面積 | - - m2 | ||||||||||||||||||||||||
| 状態 | 空室 | ||||||||||||||||||||||||
| 賃料 | 82,000円 | ||||||||||||||||||||||||
| 共益費 ・管理費 |
6,000円 | ||||||||||||||||||||||||
| 敷金 | なし | ||||||||||||||||||||||||
| 保証金 | なし | ||||||||||||||||||||||||
| 礼金 | なし | ||||||||||||||||||||||||
| 償却・敷引 | |||||||||||||||||||||||||
| 更新料 | |||||||||||||||||||||||||
| 他諸経費 |
○ 保証会社
保証会社利用必須 複数社取り扱い可能
保証会社により費用が異なります(初回保証料・月額・更新料)
○ 保険
保険要加入 指定代理店にて加入 2年契約 20,000円 ~ (更新あり)
○ 初期費用
○ ランニングコスト
○ 退去時
|
||||||||||||||||||||||||
| 契約期間 | |||||||||||||||||||||||||
| その他 |
法人契約可 |
||||||||||||||||||||||||
| オススメ |
○ ※個別玄関まで非接触(オートロック・郵便受・宅配ボックス・エレベーター) ※駐車場は12月~3月まで、毎月除雪費3,300円が別途必要です。 ○ キッチン横にパントリー、洋室内にウォークインクロゼット、玄関にシューズクロゼット等、収納設備が充実したデザイナーズマンションです。 |
||||||||||||||||||||||||
| 備考 |
○ ※室内写真は前回募集時のものです。 ○ インターネット備考:e-style(高速V6プラン・Wifi) |
||||||||||||||||||||||||
| 周辺環境・施設 |
○ [ コンビニエンスストア ] ローソン 135m
○ [ スーパーマーケット ] まいばすけっと 500m
○ [ 病院 ] 天使病院 648m
○ [ 小学校 ] 美香保小学校 348m
○ [ 中学校 ] 美香保中学校 362m
○ [ 郵便局 ] 510m
|
||||||||||||||||||||||||
| 設備・条件 | ○ 角部屋 ○ 2人入居可能 ○ 子供可 ○ 高齢者入居可能 ○ 保証会社利用必須 ○ 給湯器(ガス) ○ システムキッチン ○ 風呂 ○ トイレ ○ 暖房便座 ○ シャワートイレ ○ 洗髪洗面化粧台 ○ バス・トイレ別 ○ 洗濯機置場(室内) ○ エアコン(冷房のみ) ○ 暖房(ガス) ○ ウォークインクローゼット ○ シューズボックス ○ BS ○ CS ○ インターネット対応 ○ ネット使用料不要 ○ オートロック ○ オートロック ハンズフリー ○ 宅配BOX ○ 防犯カメラ ○ インターホン(カメラ付き) ○ 専用ごみ置場 ○ エレベーター(1基) ○ 自転車置場 ○ ロードヒーティング ○ ガス(プロパンガス) ○ バルコニー/ベランダ ○ 照明 ○ 専用庭付 ○ デザイナーズ | ||||||||||||||||||||||||
| 情報更新日 | 2025-12-25 16:11:40 | ||||||||||||||||||||||||
| お問合せ |
お問い合わせの際に「R-fino N17 109(F・1LDK)号室」とお伝えいただくとスムーズです
株式会社 旭堂
札幌市中央区大通西17丁目1番地14 旭堂第2ビル4階 TEL:011-614-2103 / FAX:011-616-4455 web:http://www.e-asahidou.com Email:fudousan@e-asahidou.com 北海道知事石狩免許(3)第8264号 取引態様:仲介 |